Nous suivre
0
  • Acheter De l'ancien
Dans un rayon de
Budget
Mini
Maxi

    Faites estimer votre bien par un professionnel

    Estimer votre bien

    Appartement T3 en rez-de-jardin à La Terrasse

    La Terrasse (38660)
    Réf : 13

    I VENDU I


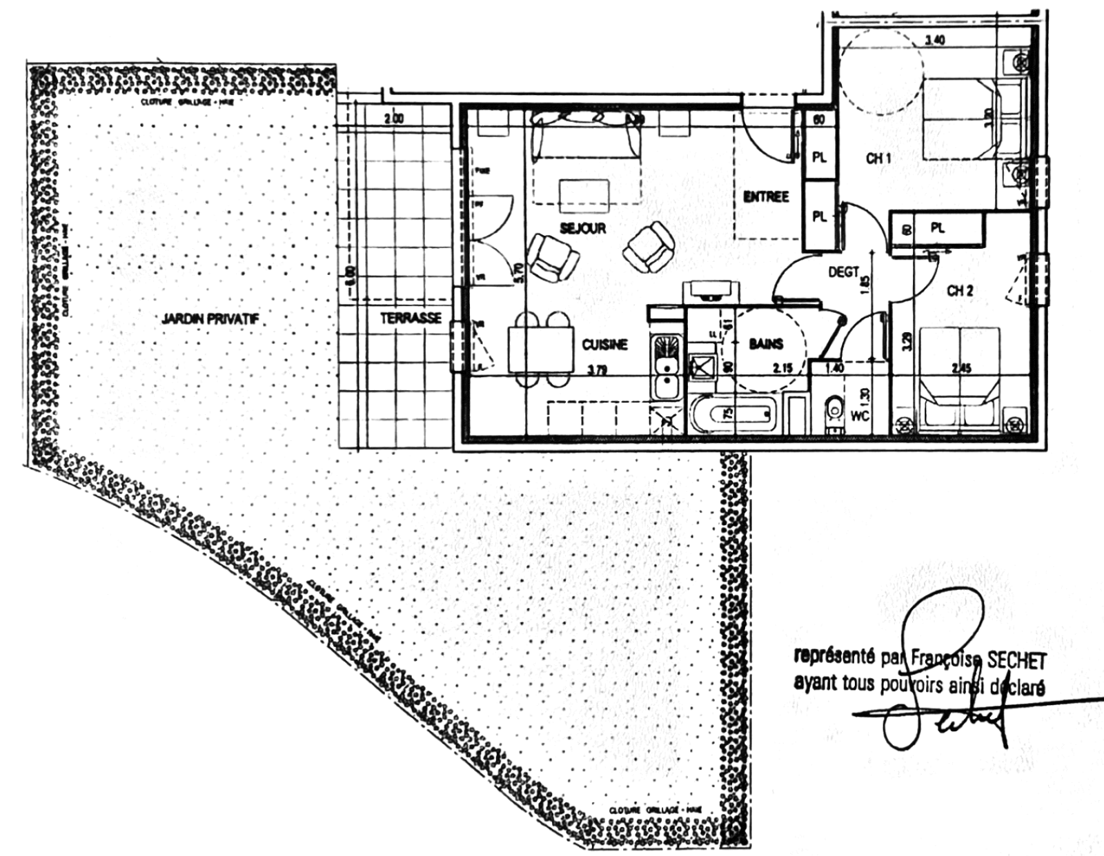
    Appartement T3 traversant de 59 m², très lumineux, en rez-de-jardin, situé sur la commune de La Terrasse.

    L'appartement offre une entrée avec un placard mural donnant sur une belle pièce de vie de 29 m², comprenant une cuisine ouverte entièrement aménagée et équipée. Vous accéderez à un espace extérieur des plus agréables, composé d'une terrasse de 12 m² et d'un jardin privé de 89 m², soigneusement clôturé et arboré.

    La partie nuit se compose de deux chambres, dont l'une mesure 12,25 m² et l'autre 9,42 m², toutes deux équipées de placards intégrés pour un rangement optimal. De plus, vous y trouverez une salle de bains carrelée, spacieuse, avec suffisamment d'espace pour accueillir une machine à laver et éventuellement un sèche-linge ainsi qu'un WC indépendant.

    Les fenêtres en PVC à double vitrage, les volets roulants électriques, et la porte sécurisée assurent votre confort et votre sécurité. L'appartement est parfaitement entretenu et aucuns travaux ne sont à prévoir.

    Grâce à son orientation sud-ouest, ce bien bénéficie d'un ensoleillement optimal tout au long de l'année. Vous serez également séduit par la vue sur le Massif de la Chartreuse.

    Ce bien est situé au sein d'une résidence comprenant trois bâtiments, construits en 2010. L'environnement est calme et paisible. La résidence est très bien entretenue, fermée et sécurisée, proposant de nombreuses places de parking libres (places communes).

    Situé à proximité du centre de La Terrasse, vous bénéficierez de la proximité de commerces, d'écoles, de crèches, de pharmacies et de cabinets médicaux. Les lignes de bus T83 et T84 (du réseau Cars Région) ainsi que la ligne G3 (du réseau de transport TOUGO du Grésivaudan) desservent la commune. La gare la plus proche, située à Goncelin, est desservie par le TER "Chambéry-Grenoble".

    Montant estimé des dépenses annuelles d'énergie pour un usage standard : entre 620 € et 890 € par an. Prix moyens des énergies indexés sur l'année 2021 (abonnements compris). Les informations sur les risques auxquels ce bien est exposé sont disponibles sur le site Géorisques : www.georisques.gouv.fr

    Vous souhaitez faire appel à nos services, nous vous proposons un accompagnement global incluant un accompagnement fiscal et patrimonial (ex : conseils sur le réemploi des capitaux et calcul de la plus value)

    Contacter l'agence A.C.O Estate & Invest - Séverine Coelho au O614094350 ou par e-mail : severine.coelho@aco-estate.com. (

    RSAC 497 480 806)

    ou Olivier Coelho au O6 34 67 45 77 ou par mail : olivier.coelho@aco-estate.com


    Les informations sur les risques auxquels ce bien est exposé sont disponibles sur le site Géorisques
    Prix du bien 230 000 €
    Pièce(s) 3
    Chambre(s) 2

    Caractéristiques du bien

    Caractéristiques Valeurs
    Code postal 38660
    Surface habitable (m²) 59,65 m²
    Surface loi Carrez (m²) 59,65 m²
    Nombre de chambre(s) 2
    Nombre de pièces 3
    Ascenseur NON
    Vue Dent de Crolles - Massif de la Chartreuse
    Nb de salle de bains 1
    Cuisine Américaine
    Type de cuisine Equipée
    Mode de chauffage Gaz
    Type de chauffage TRAD_TYPE_CHAUFF_CHAUDIERE
    Format de chauffage Individuel
    Interphone OUI
    Visiophone NON
    Balcon NON
    Terrasse OUI
    Cave NON
    Exposition Sud-Ouest
    Année de construction 2010

    Infos financières

    Caractéristiques Valeurs
    Prix de vente 230 000 €
    Les honoraires d'agence seront intégralement à la charge du vendeur  
    Charges 179 €
    Taxe d'habitation 718 €

    Bilans énergétiques

    DPE GES
    Ce bien vous intéresse ?
    Fieldset par défaut
    Fieldset par défaut
    Validation

    * Champs obligatoires

    Contacter l'agence
    Validation
    Les informations recueillies sur ce formulaire sont enregistrées dans un fichier informatisé par La Boite Immo agissant comme Sous-traitant du traitement pour la gestion de la clientèle/prospects de l'Agence / du Réseau qui reste Responsable du Traitement de vos Données personnelles. La base légale du traitement repose sur l'intérêt légitime de l'Agence / du Réseau. Elles sont conservées jusqu'à demande de suppression et sont destinées à l'Agence / au Réseau. Conformément à la loi « informatique et libertés », vous disposez des droits d’accès, de rectification, d’effacement, d’opposition, de limitation et de portabilité de vos données. Vous pouvez retirer votre consentement à tout moment en contactant directement l’Agence / Le Réseau. Consultez le site https://cnil.fr/fr pour plus d’informations sur vos droits. Si vous estimez, après avoir contacté l'Agence / le Réseau, que vos droits « Informatique et Libertés » ne sont pas respectés, vous pouvez adresser une réclamation à la CNIL. Nous vous informons de l’existence de la liste d'opposition au démarchage téléphonique « Bloctel », sur laquelle vous pouvez vous inscrire ici : https://www.bloctel.gouv.fr Dans le cadre de la protection des Données personnelles, nous vous invitons à ne pas inscrire de Données sensibles dans le champ de saisie libre.
    Ce site est protégé par reCAPTCHA, les Politiques de Confidentialité et les Conditions d'Utilisation de Google s'appliquent.